
とやまの家<黒> 4つの中庭をもつ 黒のピラミッド
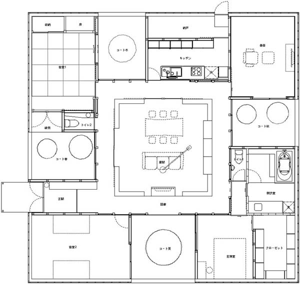
敷地は市街化調整区域内にあり、宅地化している土地は周辺にはほとんどなく、まだ未開発で、田園風景が広がる中にある。クライアントの要求はプライバシーの高い居住性とホームシアター等を備えた独立した居間だった。そこで、仕事柄、家にいる時間が細切れで短いクライアントに、窓のない外観と、密度の高い時間をすごせる居室を建物中心に提案した。建物は平家建てとし、建物断面 がそのまま各部屋の気積となる。内部空間の中心=居間、にいると、屋根頂部に設けれれたトップライトからふってくる光により、意識は垂直上方へと導かれる。居間の中心にはソファがおかれ、南側にむかって座ると、東西南北それぞれにあけられた開口から4つの中庭をかいして、ソトを感じることができる。また、時間帯により変化する太陽の動きが光の様子により感じられるだろう。この住宅は囲われているからこそ、建築の中心に座しながら、建物周辺にひろがる、環境=「建築をとりまく大きな世界」につつまれていることを実感できる。
雪に対応した形 -ピラミッド-
プロジェクト名:とやまの家<黒>
建築用途:専用住宅
所在:富山県氷見市
工事予定期間:2006.08〜2007.02
主体構造:鉄筋コンクリート造+木造
主要仕上材:外部:GL鋼板平葺/アルミサッシュ
居間:床:ローズウッド
壁:コンクリート打放し
天井:杉板t12
建築面積:188F
延床面積:188F
用途:専用住宅
4つの中庭 -光をみちびくヴォイド-
伝統の架構 -わくのうちのように-

