
コートハウス 01
.
菜園ののったフラット


所在:富山県富山市宮成
用途:専用住宅
主体構造:木造
基礎:ベタ基礎
敷地面積 308.77 m2
建築面積 161.01 m2
延床面積 161.01 m2
家族構成:夫婦+子+子 4人
竣工年月日:2008年8月



コートハウス01
3方向にひらいたコートハウス
敷地は市街からほどよく離れ、大きな河川が近いからか、ひろびろとした田園風景が広がる一角の
比較的新しいの住宅地の中にある。接道の他に3つの隣地に接しており
2階建ての住宅が3つそれぞれ、距離は近いが適度な余白をもって隣接している。
施主の希望は平家建てであった。それと、部屋の奥の方で座って遠い空の見える(斜め上方向に視線がぬける)家。
そこで想像したのが開放的な平屋のコートハウス。
2階建ての住居がたちならぶ一般的な風景のなかに、洗練された平屋の建築をさしこみたいと考えた。
周辺から擁壁により守られ、できるだけシンプルな構成をもち、外へとひろがりのある住まいを考えたいと思った。
隣地境界線に擁壁をたて、隣家1Fの視線と周辺道路からの視線を遮った。
また、隣家2Fからの視線は、軒を深くすることで回避した。
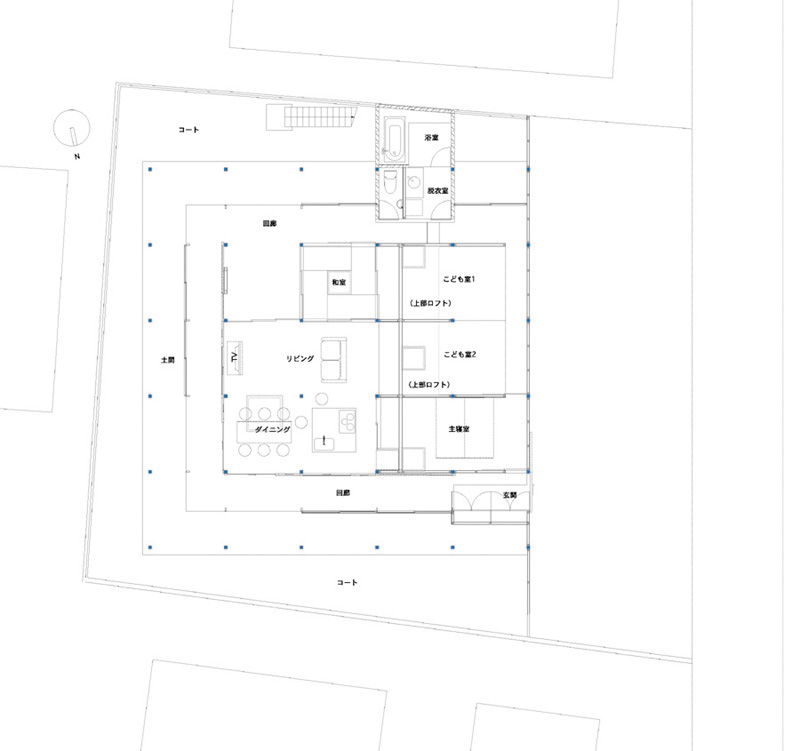
もっともアキがあり、空がよく見える東側にソトに開いた場「オープン・エリア」をおき
道路側の西側に耐力壁でかこまれた「コア・エリア」をおいた 。
「オープン・エリア」はガラス張りにして、周囲のコート3方向に視界をひろげた。
外からの視線を気にせずに、隣家のないところからは、斜め上に青い空が見えて、遠くに立山連峰が見えるようにした。
また、フラッ・トスラブで挟まれた天井と床には、同じ材質の木を張り、
そこに均等なグリッド上に柱を配置して、できるだけ均質で透明な空間を目指した。
野菜を育てたいという奥様の希望から、地上のコートは眺めるための庭とし、
屋上に菜園をつくることにした。屋上の菜園は、木の箱を屋根に置くことでつくられている。
そこに土をいれ、野菜を育てることで、その下にある居室にとって断熱効果を期待した。
オープン・エリアは、居間 - 縁側 - 土間 - コート の順にソトに向かう。
水平にソトへと拡がる意識を、感じられることを意図した。
深い軒の出や、縁側など、日本の伝統的な建築言語をもりこんだ、コートハウス。
今回のstudyでコートハウスへの興味は高り、今後も持続しそうだ。この住宅はその一つ目。コートハウス01。
菜園ののったフラット・スクエアなものとなったが、引き続き機会があれば続編を考えていきたい。