

浮かんだ パティオ のある家
空中の庭園
間口がせまく細長い
両側は隣家がせまった敷地
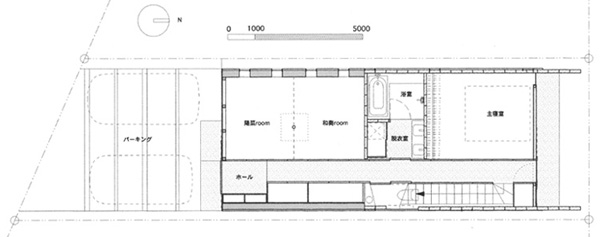
1階は個室をまとめて
2階は主な生活の場とした
前後に5mはりだした
やじろべぇ構造 橋梁のよう な構造体
浮かんだ 2Fの空間は
リビング - パティオ - ダイニング
とつながるワンルームで 外部をいりこませた
白い洞くつ
白く包まれた - 雲のなかのよう





2F PLAN

浮かんだパティオのある家
所在:富山県射水市
工事期間:2007.03〜2007.11
主体構造:鉄筋コンクリート造+木造
敷地面積 120.41 m2
建築面積 80.85 m2
延床面積 130.78 m2
1階 59.73m2 2階 71.05m2
家族構成:夫婦+子+子 4人
用途:専用住宅
